785 Post Rd East Unit 304, Westport, CT, 06880

condo home
$ 1,000,000 Sold Sep 3, 2025
203 days on market, 86% sale-to-list ratio
  • 1 bed
  • 1 bath
  • 1,020 sq ft
  • under constr.

About the Home

AMAZING NEW CONSTRUCTION! Located in the heart of Westport, The Gables of Westport presents a collection of eight townhomes and five flats, blending sophisticated design with the ease of in-town living. Enjoy close proximity to Metro-North, major highways, Longshore Club & Park, Compo Beach, Levitt Pavilion, Westport Country Playhouse, fine dining, shopping, and entertainment. Crafted by local renowned builder RPM Home Inc., these residences showcase open floor plans and premium finishes: Bertazzoni appliances, Grohe fixtures, custom cabinetry, quartz and marble countertops, 6" white oak flooring, and elegant trim selections. This nearly completed residential flat provides the best of single-floor living, filled with natural light from expansive Marvin windows. The open floor plan seamlessly connects the living room, kitchen, and dining area. Set within a private enclave tucked away from Post Road, the community is surrounded by lush native landscaping and green spaces. Elevator option available. HOA estimated at $500-$600/month. Real Estate Taxes are to be determined.

Rooms & Interior

1 bedroom bed
1 full bath
1,020 square feet sq ft

Room Details

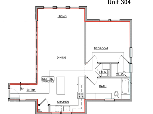
  • Living Room (Main Level) 9 ft+ Ceilings, Hardwood Floor
  • Dining Room (Main Level) 9 ft+ Ceilings, Hardwood Floor
  • Primary Br Suite (Main Level) 9 ft+ Ceilings, Full Bath, Hardwood Floor
  • Kitchen (Main Level) 9 ft+ Ceilings, Quartz Counters, Island, Pantry, Hardwood Floor

Home Features

Heating

  • Heating: heat pump, hot air, zoned
  • Heat fuel type: natural gas

Cooling

  • Central air

Interior Features

  • Cable - available
  • Open floor plan
  • Security system

Appliances

  • Convection range
  • Microwave
  • Range hood
  • Refrigerator
  • Freezer
  • Dishwasher

Home Automation

  • Security system
  • Thermostat(s)

Attic

  • Storage space
  • Access via hatch

Basement

  • None

Laundry

  • Location: upper level
  • Upper level

Energy Features

  • Extra insulation
  • Programmable thermostat
  • Thermopane windows

Exterior Features

  • Underground utilities
  • Gutters
  • Lighting
  • Underground sprinkler

Property Details

Parking

  • Paved
  • Parking lot
  • Assigned parking

Waterfront

  • Beach rights
Waterfront Homes in Westport

Lot Details

  • Sloping lot

Utilities

  • Water: public water connected
  • Sewage: pub. sewer connected

Near-by Amenities

  • Golf course
  • Health club
  • Park
  • Playground/tot lot
  • Private rec facilities
  • Shopping/mall
  • Walk to bus lines

HOA Fee

  • $ 600 monthly

Construction Details

Style
ranch

New construction
under construction

Construction year
2025

Exterior Siding
vertical siding, wood, other

New Constructions in Westport

Area & Town

This home is located in Long Lots neighborhood, in the town of Westport.

Finance & Listing Info

Status Closed
Listing date September 03, 2025
Closed date March 25, 2026
Days on market 203 days
List price $ 1,150,000
Close price $ 1,000,000
Sale-to-list ratio 86%
Tax amount $ 999
Tax year july 2025-june 2026
Financing used Cash
MLS ID #24123814
List Agent Todd Gibbons
List Office Boost Real Estate Group

785 Post Road East Home Photos

Because we love Fairfield County!

© Copyright 1999 - 2026 Dagny's LLC. - 20 Windy Ridge Place Wilton, CT 06897 - Terms & Conditions