71 Deleo Dr Stamford, CT, 06906

single family home
$ 695,000 For Sale Active Sep 29, 2025
  • 2 beds
  • 2 baths
  • 2,714 sq ft
  • 1955 year built
  • 1 car garage

About the Home

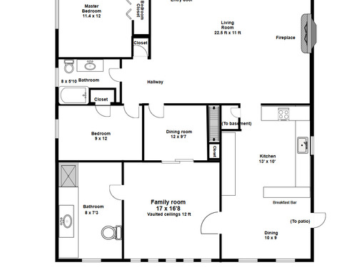
Tucked away on one of the last homes at the end of a quiet, sought-after cul-de-sac in Glenbrook, this versatile 2-3 bedroom Ranch is full of potential and ready for its next chapter. Step inside to a warm and inviting living room - a perfect spot to relax by the fireplace. The spacious family room, featuring vaulted ceilings, creates an ideal space for gatherings, entertaining, or simply unwinding. A bright, eat-in kitchen includes a breakfast bar and opens directly to a private, fenced-in patio - perfect for enjoying peaceful mornings or quiet evenings. Additional room off the family room offers flexibility as a third bedroom, home office, or dining room. Additional features include gleaming hardwood floors, a full basement and attic for extra storage, and an attached one-car garage. All this, just minutes from the train, shopping, restaurants, and I-95. Enjoy both privacy and convenience - and discover the tranquility of living on a true dead-end street. Come see the possibilities! Upgrades: Roof approximately 7 years old, siding about 5 years old, new gutters 2 years old, new fenced yard, fresh paint almost through the home, brand new kitchen appliances, new water heater 2 years old, and brand new garage door and outdoor stairs.

Rooms & Interior

2 bedrooms beds
2 full baths
2,714 square feet sq ft

Room Details

  • Dining Room (Main Level)
  • Primary Bedroom (Main Level)
  • Bedroom (Main Level)
  • Living Room (Main Level)

Home Features

Heating

  • Fireplaces: 1
  • Heating: baseboard
  • Heat fuel type: oil
  • Fuel tank: in basement

Cooling

  • Wall unit

Appliances

  • Electric cooktop
  • Oven/range
  • Refrigerator
  • Dishwasher
  • Washer
  • Dryer

Attic

  • Pull-down stairs

Basement

  • Full
  • Storage
  • Garage access
  • Interior access
  • Full with walk-out

Laundry

  • Lower level

Property Details

Parking

  • Garage spaces: 1
  • Attached garage
  • Driveway

Lot Details

  • Lot surface: 0.29 acres
  • On cul-de-sac

Driveway

  • Paved

Utilities

  • Water: public water connected
  • Sewage: pub. sewer connected

Construction Details

Style
ranch

Construction year
1955

Exterior Siding
vinyl siding

Foundation
block, concrete

Roof
asphalt shingle


Open Houses

There is 1 scheduled open house for 71 Deleo Drive, Stamford, CT.
November 15, 2025 Nov 15, 2025 13:00 - 15:00 (public)

Area & Town

This home is located in Glenbrook neighborhood, in the town of Stamford.

Finance & Listing Info

Status Active
Listing date September 29, 2025
List price $ 695,000
Current price $ 695,000
Tax amount $ 8,234
Tax year july 2025-june 2026
MLS ID #24129919
List Agent Elke Seperak
List Office Century 21 AllPoints Realty

71 Deleo Drive Home Photos

Because we love Fairfield County!

© Copyright 1999 - 2025 Dagny's LLC. - 20 Windy Ridge Place Wilton, CT 06897 - Terms & Conditions