275 Dayton Rd Trumbull, CT, 06611

single family home
$ 659,000 For Sale Cont. To Show Sep 12, 2025
  • 5 beds
  • 3 baths
  • 2,564 sq ft
  • 1958 year built
  • 2 cars garage

About the Home

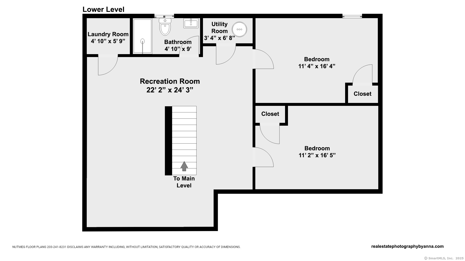
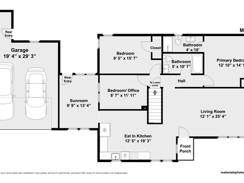
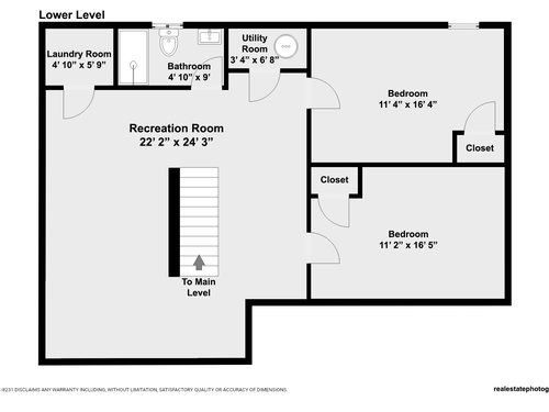
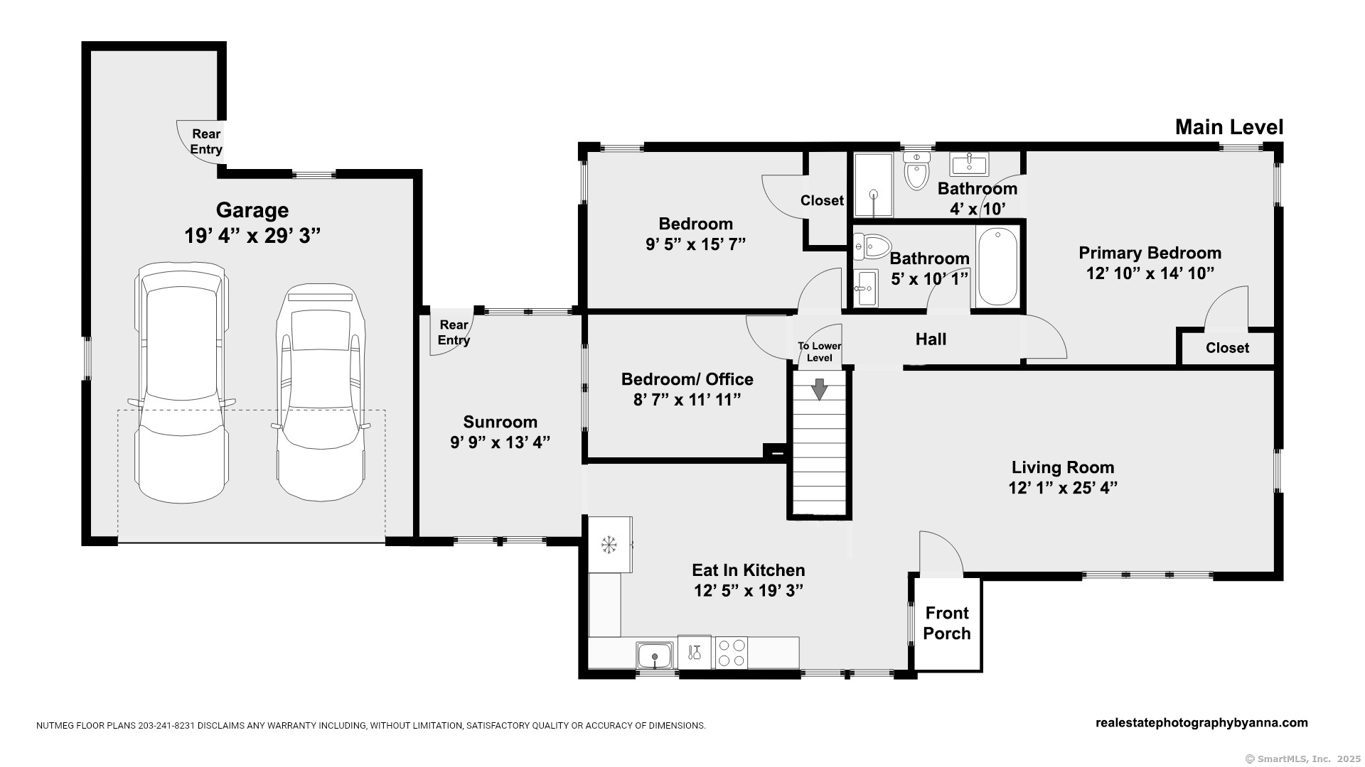
Come home to 275 Dayton Road and discover comfort and convenience in this completely remodeled ranch style home boasting 4/5 bedrooms and 3 well appointed bathrooms. Perfect for large families or those in need of extra space for guests. Nestled on a level .41 acre private lot, this home is next to Great Oak Park and near Jane Ryan Elementary and Madison Middle Schools, yet centrally located close to all that Trumbull has to offer. The main level provides plenty of living space, including a fully remodeled kitchen, large living room, 2/3 bedrooms and 2 full bathrooms. A bonus room next to the kitchen adds even more space! The lower level offers a large open floorplan for use as a home gym, play area or family room. A full bathroom, laundry room and two additional bedrooms compliment the lower level. The home is equipped with an entirely new heat pump system that provides efficient heating and cooling and a newer roof and vinyl siding ensures maintenance free living. All recent work has been fully permitted by the town that reflects an increase in the livable square footage on the lower level and the addition of a full bathroom.

Rooms & Interior

5 bedrooms beds
3 full baths
2,564 square feet sq ft

Room Details

  • Bedroom (Main Level)
  • Bedroom (Lower Level)
  • Bedroom (Lower Level)
  • Living Room (Main Level)
  • Dining Room (Main Level)
  • Primary Bedroom (Main Level)
  • Office (Main Level)
  • Bedroom (Main Level)
  • Family Room (Lower Level)
  • Bedroom (Main Level)
  • Bedroom (Lower Level)
  • Bedroom (Lower Level)
  • Living Room (Main Level)
  • Dining Room (Main Level)
  • Primary Bedroom (Main Level)
  • Office (Main Level)
  • Bedroom (Main Level)
  • Family Room (Lower Level)

Home Features

Heating

  • Heating: heat pump, hot water
  • Heat fuel type: electric

Cooling

  • Central air
  • Heat pump

Appliances

  • Electric range
  • Refrigerator
  • Dishwasher

Attic

  • Access via hatch

Basement

  • Full

Laundry

  • Lower level

Property Details

Parking

  • Garage spaces: 2
  • Attached garage

Lot Details

  • Lot surface: 0.41 acres
  • Lightly wooded
  • Level lot

Utilities

  • Water: public water connected
  • Sewage: pub. sewer in street, septic

Near-by Amenities

  • Basketball court
  • Library
  • Park
  • Playground/tot lot
  • Public pool
  • Tennis courts

Construction Details

Style
ranch

Construction year
1958

Exterior Siding
vinyl siding

Foundation
concrete

Roof
asphalt shingle


Area & Town

This home is located in Long Hill neighborhood, in the town of Trumbull.

Finance & Listing Info

Status Cont. to show
Listing date September 12, 2025
List price $ 659,000
Current price $ 659,000
Tax amount $ 9,375
Tax year july 2025-june 2026
MLS ID #24125490
List Agent Brian Fitzgerald
List Office Coldwell Banker Realty

275 Dayton Road Home Photos

Because we love Fairfield County!

© Copyright 1999 - 2025 Dagny's LLC. - 20 Windy Ridge Place Wilton, CT 06897 - Terms & Conditions