2 Manhassett Trl Shelton, CT, 06484

single family home
$ 300,000 Sold Nov 20, 2025
47 days on market, 100% sale-to-list ratio
  • 2 beds
  • 2 baths
  • 1,292 sq ft
  • 1940 year built

About the Home

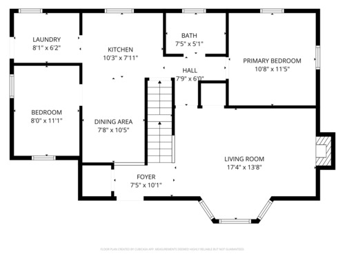
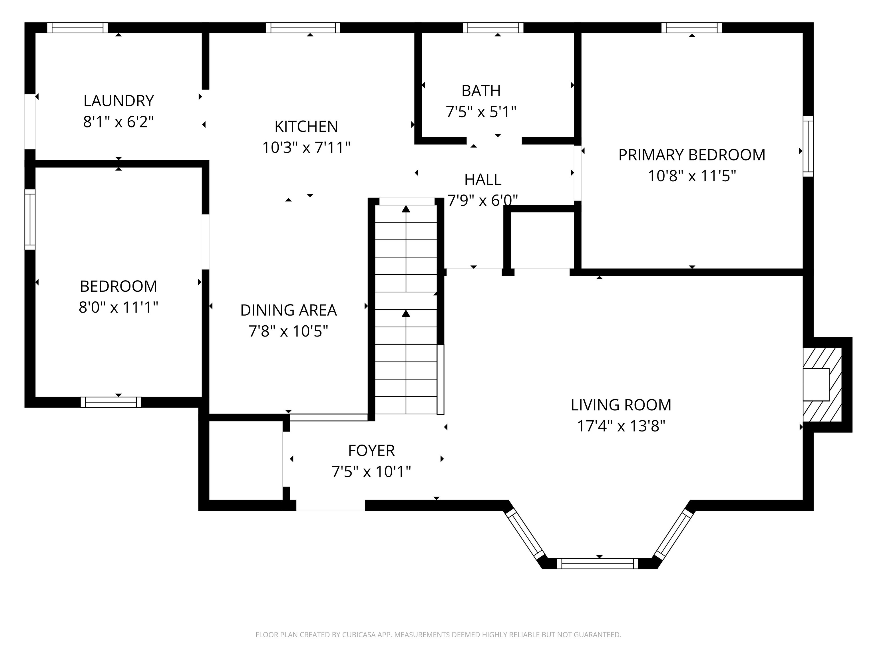
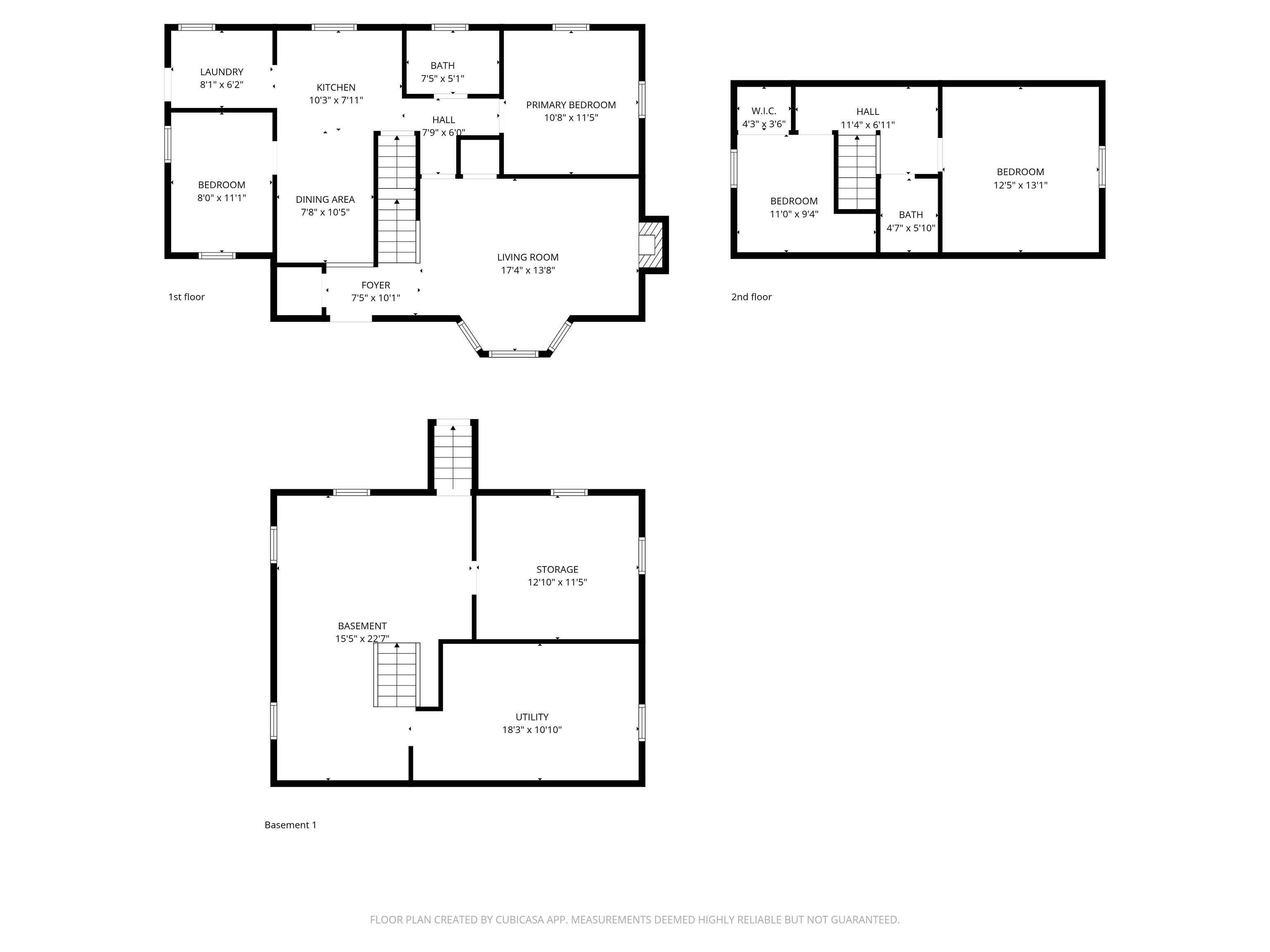
Highest & Best Offers Due Tuesday 11/25 by 4:00pm. Welcome to 2 Manhassett Trail, a charming Cape Cod style home tucked away at the end of a quiet dead end road in Shelton. NEWER ROOF, NEWER MECHANICALS. This four bedroom property (see floor plan) offers rare privacy while still being just seconds from Sikorsky Aircraft, major highways, shopping, and popular local amenities. The location is ideal for commuters who want both convenience and privacy. The home has great bones and incredible potential for the right buyer. With some TLC and vision, this could be a standout renovation project or profitable flip opportunity. The layout features classic Cape details, an inviting main living area, and flexible spaces that can be reimagined to suit modern living. Whether you are an investor searching for your next project or a homeowner looking to build equity and customize your space, 2 Manhassett Trail delivers a promising canvas in a desirable Shelton neighborhood. The setting, privacy, and location all shine. Come explore the possibilities. Home to be sold as is. Signed Hold Harmless Agreement required for all showings.

Rooms & Interior

2 bedrooms beds
1 full + 1 half baths
1,292 square feet sq ft

Room Details

  • Office (Main Level)
  • Eat In Kitchen (Main Level)
  • Living Room (Main Level)
  • Primary Bedroom (Upper Level)
  • Bedroom (Upper Level)
  • Dining Room (Main Level)

Home Features

Heating

  • Fireplaces: 1
  • Heating: baseboard
  • Heat fuel type: oil
  • Fuel tank: in basement

Cooling

  • Window unit

Appliances

  • Oven/range
  • Dishwasher

Basement

  • Full
  • Unfinished

Property Details

Parking

  • None

Lot Details

  • Lot surface: 0.12 acres
  • On cul-de-sac

Utilities

  • Water: public water connected
  • Sewage: pub. sewer connected

Construction Details

Style
cape cod

Construction year
1940

Exterior Siding
vinyl siding, aluminum

Foundation
concrete

Roof
asphalt shingle


Area & Town

This home is located in Pine Rock Park neighborhood, in the town of Shelton.

Finance & Listing Info

Status Closed
Listing date November 20, 2025
Closed date January 06, 2026
Days on market 47 days
List price $ 299,900
Close price $ 300,000
Sale-to-list ratio 100%
Tax amount $ 3,041
Tax year july 2025-june 2026
Financing used Cash
MLS ID #24141133
List Agent Nicole Fiorelli
List Office Fiorelli Realty, LLC

2 Manhassett Trail Home Photos

Because we love Fairfield County!

© Copyright 1999 - 2026 Dagny's LLC. - 20 Windy Ridge Place Wilton, CT 06897 - Terms & Conditions