193 Putting Green Rd Trumbull, CT, 06611

single family home
$ 886,000 Sold Dec 1, 2025
63 days on market, 102% sale-to-list ratio
  • 4 beds
  • 3 baths
  • 2,926 sq ft
  • 1.05 acres
  • 1973 year built
  • 2 cars garage

About the Home

Welcome to 193 Putting Green Road! This is an extremely well maintained family home in one of Trumbull's prime locations in the highly sought after Daniels Farm School district. Perfect for family living with four large bedrooms and ample living space for all. The main level has a formal living room with fireplace for quiet get away. The oversized kitchen is a chef's haven with ample workspace and a huge island for gatherings, also offering an eat-in area and a large walk in pantry. The kitchen has glass doors out to the expansive sun room which flows to the deck overlooking the Park-like backyard with plenty of room for play. The garage is attached for easy entry through the mud room with entryway bench and storage to offload school bags, coats, etc. before entering the kitchen! The dining room and family room are attached and the first floor is complete with a newly refinished full bath and an office for days to work from home. The upper level houses the four oversized bedrooms, all with hardwood floors. The primary bedroom is complete with large bathroom with shower and tub. The other three bedrooms have ample closet space. This level is complete with full hall bath and laundry location. The unfinished basement has plenty of storage room and ample room to finish also. Some major upgrades since 2021are new hvc in main house and sun room, new furnace, new hot water heater, first floor bath, renovated sun room with new roof, new elec panel. More upgrades on doc attached.

Rooms & Interior

4 bedrooms beds
3 full baths
2,926 square feet sq ft

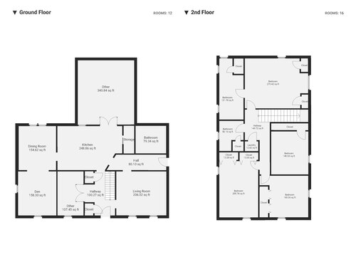
Room Details

  • Study (Main Level) Hardwood Floor
  • Bedroom (Upper Level) Hardwood Floor
  • Kitchen (Main Level) Granite Counters, Dining Area, Island, Pantry, Tile Floor
  • Family Room (Main Level) Hardwood Floor
  • Bedroom (Upper Level) Hardwood Floor
  • Sun Room (Main Level) Skylight, Beams, Sliders, Composite Floor
  • Dining Room (Main Level) Hardwood Floor
  • Primary Bedroom (Upper Level) Full Bath, Hardwood Floor
  • Bedroom (Upper Level) Hardwood Floor
  • Living Room (Main Level) Fireplace, Hardwood Floor

Home Features

Heating

  • Fireplaces: 1
  • Heating: hot air
  • Heat fuel type: natural gas

Cooling

  • Central air

Appliances

  • Gas cooktop
  • Wall oven
  • Microwave
  • Range hood
  • Refrigerator
  • Dishwasher
  • Washer
  • Dryer

Attic

  • Pull-down stairs

Basement

  • Full
  • Unfinished

Laundry

  • Upper level

Exterior Features

  • Shed
  • Deck
  • Lighting

Property Details

Parking

  • Garage spaces: 2
  • Attached garage

Lot Details

  • Lot surface: 1.05 acres
  • In subdivision

Utilities

  • Water: public water connected
  • Sewage: pub. sewer connected

Near-by Amenities

  • Golf course
  • Library
  • Medical facilities
  • Park
  • Private school(s)
  • Public pool
  • Shopping/mall
  • Tennis courts

Construction Details

Style
colonial

Construction year
1973

Exterior Siding
wood

Foundation
concrete

Roof
asphalt shingle


Area & Town

This home is located in Hillandale neighborhood, in the town of Trumbull.

Finance & Listing Info

Status Closed
Listing date December 01, 2025
Closed date February 02, 2026
Days on market 63 days
List price $ 865,000
Close price $ 886,000
Sale-to-list ratio 102%
Tax amount $ 13,690
Tax year july 2025-june 2026
Financing used Conventional fixed
MLS ID #24143145
List Agent Ruth Bruton
List Office William Raveis Real Estate

193 Putting Green Road Home Photos

Because we love Fairfield County!

© Copyright 1999 - 2026 Dagny's LLC. - 20 Windy Ridge Place Wilton, CT 06897 - Terms & Conditions