- $420K med. price
- 36 homes for sale
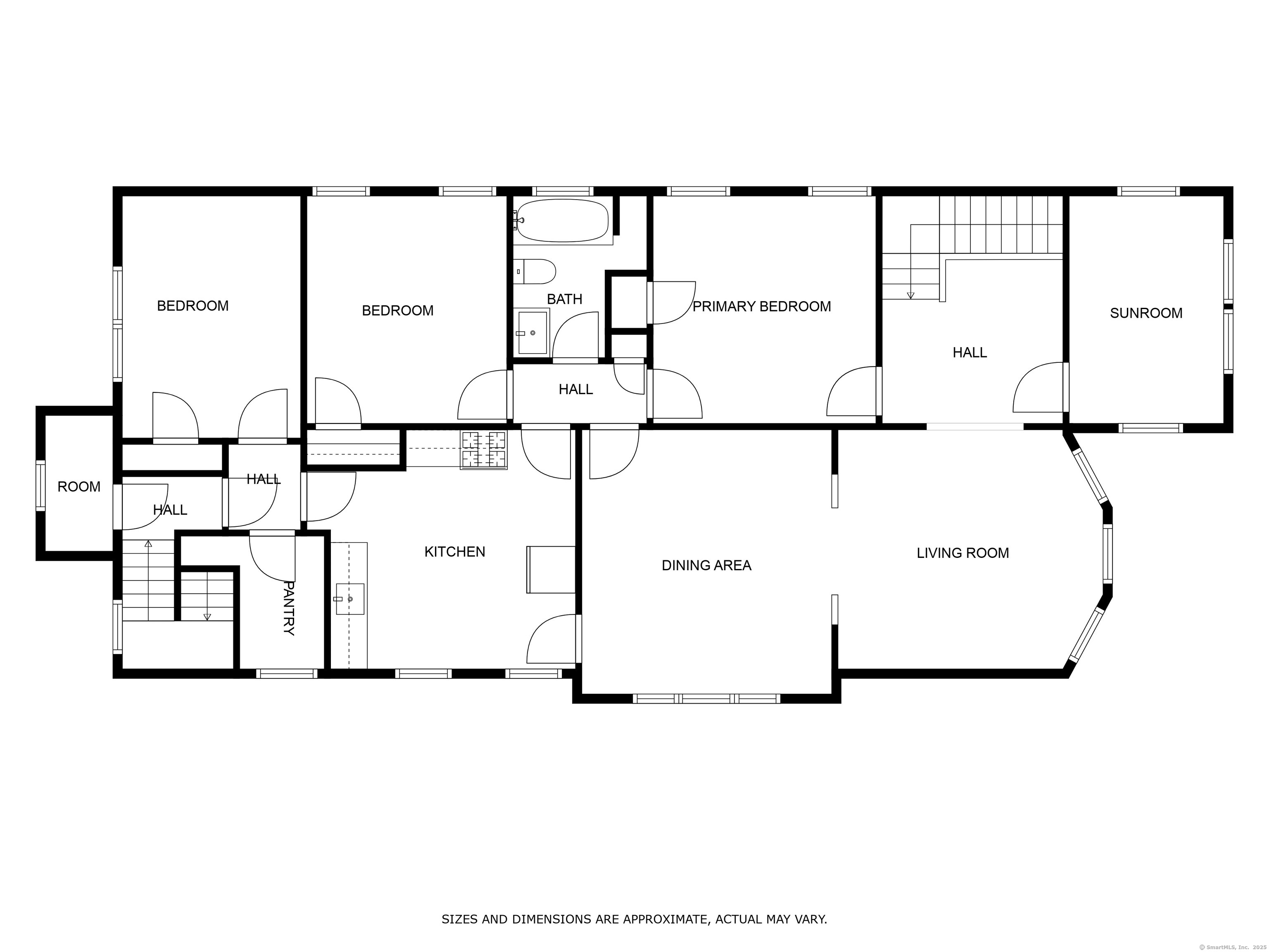
Beautiful, highly desirable North End 2-family home with oversized 3-car garage. Boasting large units with plenty of room for large families. Features 3-bedroom units with formal living room and dining rooms. Hardwood floors throughout. Updated gas heat and hot water heaters. Tiled kitchens and bathrooms. Private, partially fenced lot with hard to find, 3-car garage. Home is well maintained and ready for its new owners. Multiple offers, highest and best due Monday, 3/7/25, at 6pm.
 
      Celebrating history, looking to the future
| Status | Closed | 
|---|---|
| Listing date | April 03, 2025 | 
| Closed date | June 27, 2025 | 
| Days on market | 85 days | 
| List price | $ 579,900 | 
| Close price | $ 640,000 | 
| Sale-to-list ratio | 110% | 
| Tax amount | $ 8,060 | 
| Tax year | july 2025-june 2026 | 
| Financing used | Fha | 
| MLS ID | #24085552 | 
| List Agent | Basil Amso | 
| List Office | RE/MAX Right Choice | 
Because we love Fairfield County!
© Copyright 1999 - 2025 Dagny's LLC. - 20 Windy Ridge Place Wilton, CT 06897 - Terms & Conditions