12 Fieldstone Ct Unit 12, Bethel, CT, 06801

condo home
$ 599,000 For Sale Active Nov 18, 2025
  • 3 beds
  • 3 baths
  • 1,754 sq ft
  • under constr.
  • 1 car garage

About the Home

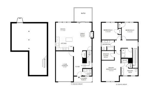
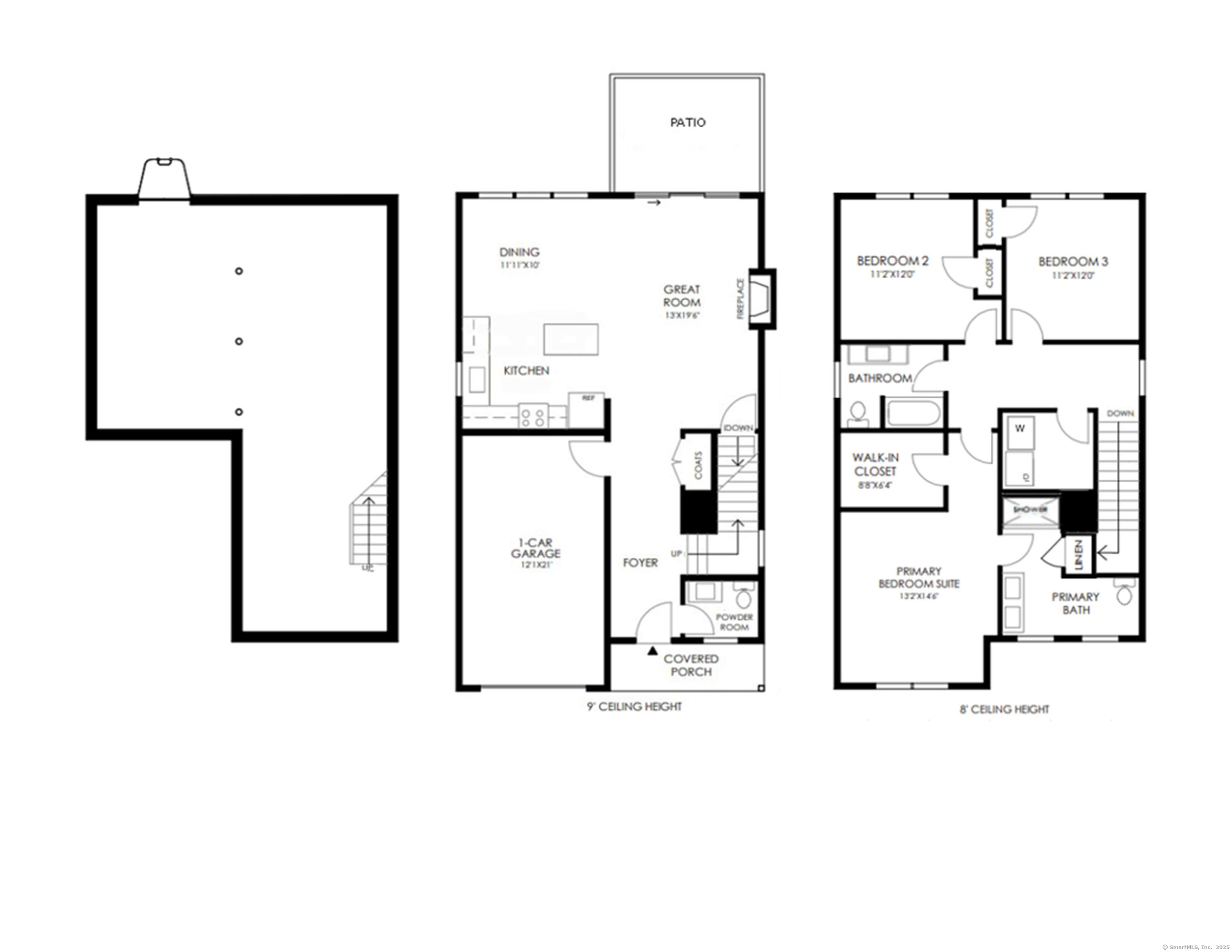
Introducing Fieldstone Commons Phase 3. A Spectacular, newly constructed community that offers a low-maintenance lifestyle and energy conscious designs. Stand alone home offering quality construction with high end features. 12 Fieldstone Court offers 1,754 Square Feet with open floor-plan. Great room has a gas log fireplace and triple window sliding door to a private Nicoloc Paver patio. Custom Kitchen and 4" Oak hardwood floors throughout. There are 3 generous bedrooms on the second floor. The primary bedroom has a huge walk-in closet and large bathroom with double sinks and walk in shower. The two additional bedrooms share a hall bathroom. There is also a separate Laundry room. Quality finishes throughout, efficient propane hot air heat with central A/C. This home also has a Spacious Garage and a Full basement with the option to finish for an additional 439 square feet of space. Convenient and central location off Stony Hill Road. Walking distance to restaurants and retail. Just minutes from Exits 8 and 9 on Interstate 84. Come see all that this new community has to offer! Fieldstone Commons A common interest community.

Rooms & Interior

3 bedrooms beds
2 full + 1 half baths
1,754 square feet sq ft

Room Details

  • Half Bath (Main Level) Hardwood Floor
  • Primary Bedroom (Upper Level) Full Bath, Stall Shower, Walk-In Closet, Hardwood Floor, Tile Floor
  • Great Room (Main Level) 9 ft+ Ceilings, Gas Log Fireplace, Patio/Terrace, Sliders, Hardwood Floor
  • Primary Bath (Upper Level) Double-Sink, Stall Shower, Tile Floor
  • Bedroom (Upper Level) Hardwood Floor
  • Bedroom (Upper Level) Hardwood Floor
  • Full Bath (Upper Level) Quartz Counters, Tub w/Shower, Tile Floor
  • Kitchen (Main Level) 9 ft+ Ceilings, Quartz Counters, Island, Hardwood Floor
  • Dining Room (Main Level) 9 ft+ Ceilings, Hardwood Floor
  • Primary Bath (Upper Level) Double-Sink, Stall Shower, Tile Floor
  • Bedroom (Upper Level) Hardwood Floor
  • Bedroom (Upper Level) Hardwood Floor
  • Great Room (Main Level) 9 ft+ Ceilings, Gas Log Fireplace, Patio/Terrace, Sliders, Hardwood Floor
  • Full Bath (Upper Level) Quartz Counters, Tub w/Shower, Tile Floor
  • Kitchen (Main Level) 9 ft+ Ceilings, Quartz Counters, Island, Hardwood Floor
  • Dining Room (Main Level) 9 ft+ Ceilings, Hardwood Floor
  • Other Rooms Foyer, Laundry room

Home Features

Heating

  • Fireplaces: 1
  • Heating: hot air, zoned
  • Heat fuel type: propane
  • Fuel tank: above ground

Cooling

  • Central air

Interior Features

  • Auto garage door opener

Appliances

  • Oven/range
  • Microwave
  • Range hood
  • Refrigerator
  • Dishwasher

Home Automation

  • Thermostat(s)

Basement

  • Full
  • Unfinished
  • Concrete floor

Laundry

  • Location: bedroom level
  • Upper level

Energy Features

  • Extra insulation
  • Fireplace insert
  • Programmable thermostat
  • Thermopane windows

Exterior Features

  • Underground utilities
  • Sidewalk
  • Patio

Property Details

Parking

  • Garage spaces: 1
  • Attached garage
  • Paved

Lot Details

  • Level lot
  • On cul-de-sac

Utilities

  • Water: public water connected
  • Sewage: pub. sewer connected

Near-by Amenities

  • Medical facilities
  • Public transportation
  • Shopping/mall

HOA Fee

  • $ 335 monthly

Construction Details

Style
single family detached

New construction
under construction

Construction year
2026

Exterior Siding
clapboard, vinyl siding

New Constructions in Bethel

Area & Town

This home is located in Chimney Heights neighborhood, in the town of Bethel.

Finance & Listing Info

Status Active
Listing date November 18, 2025
List price $ 599,000
Current price $ 599,000
Tax amount $ 9,999
Tax year july 2025-june 2026
MLS ID #24131171
List Agent Jay Streaman
List Office RE/MAX Right Choice

12 Fieldstone Court Home Photos

Because we love Fairfield County!

© Copyright 1999 - 2025 Dagny's LLC. - 20 Windy Ridge Place Wilton, CT 06897 - Terms & Conditions