199 Gregory Blvd Unit APT D2, Norwalk, CT, 06855

townhouse condo in Dorlon Terrace
$ 950,000 Sold Sep 2, 2025
142 days on market, 95% sale-to-list ratio
  • 3 beds
  • 3 baths
  • 1,652 sq ft
  • 1973 year built
  • pool house
  • 1 car garage
  • waterfront

About the Home

Gregory Point at it's Best!!! Enjoy low maintenance and vacation style living with this wonderful & versatile townhome completely rebuilt and designed for indoor/outdoor entertaining or working from home. Remodeled in 2022 this spacious unit offers an open bright floor plan and breathtaking water views from several rooms! The flexible first floor includes living room/sliders/patio, dining area, and gourmet open concept kitchen with new high end cabinets/countertops, stainless steel appliances, recessed lighting, and island for breakfast dining. Step outside your living room and enjoy the Harbor and Long Island Sound from the patio and manicured grounds. The second floor includes a primary suite with balcony that allows for privacy, morning coffee, and the sunrise. 2 additional bedrooms, custom marble bath and laundry complete the upper level. Some incredible upgrades are central AC/Heat, polished hardwood floors, remodeled bathrooms, attached garage, and ample closet and storage space. Amenities include clubhouse and pool and community conveniences such as the East Norwalk Train Station, parks/trails, Calf Pasture Beach, and water sports make Gregory Point/Marvin Beach a wonderful community.

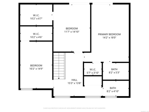
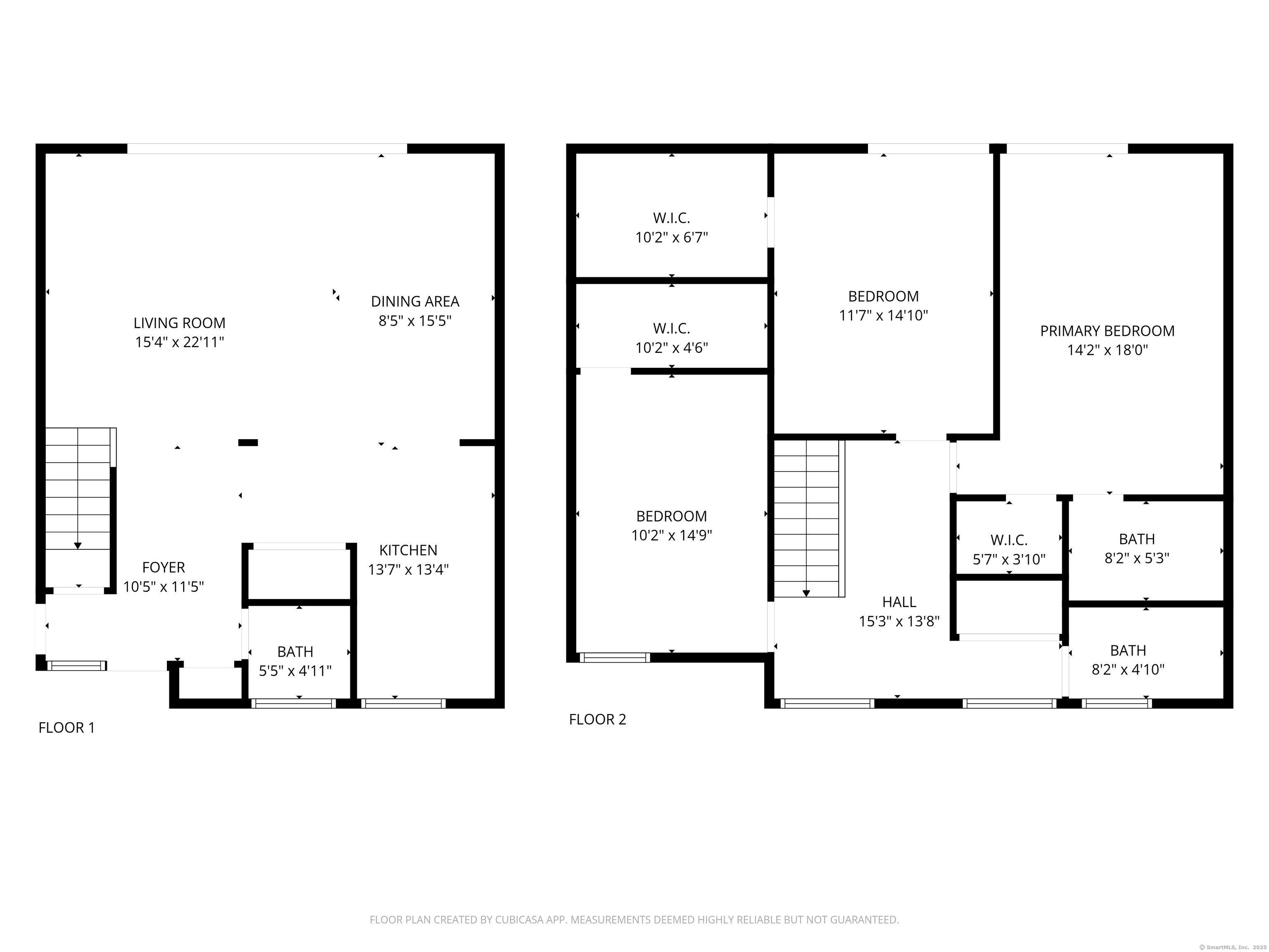
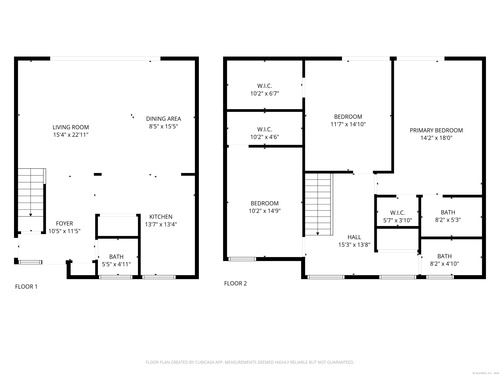
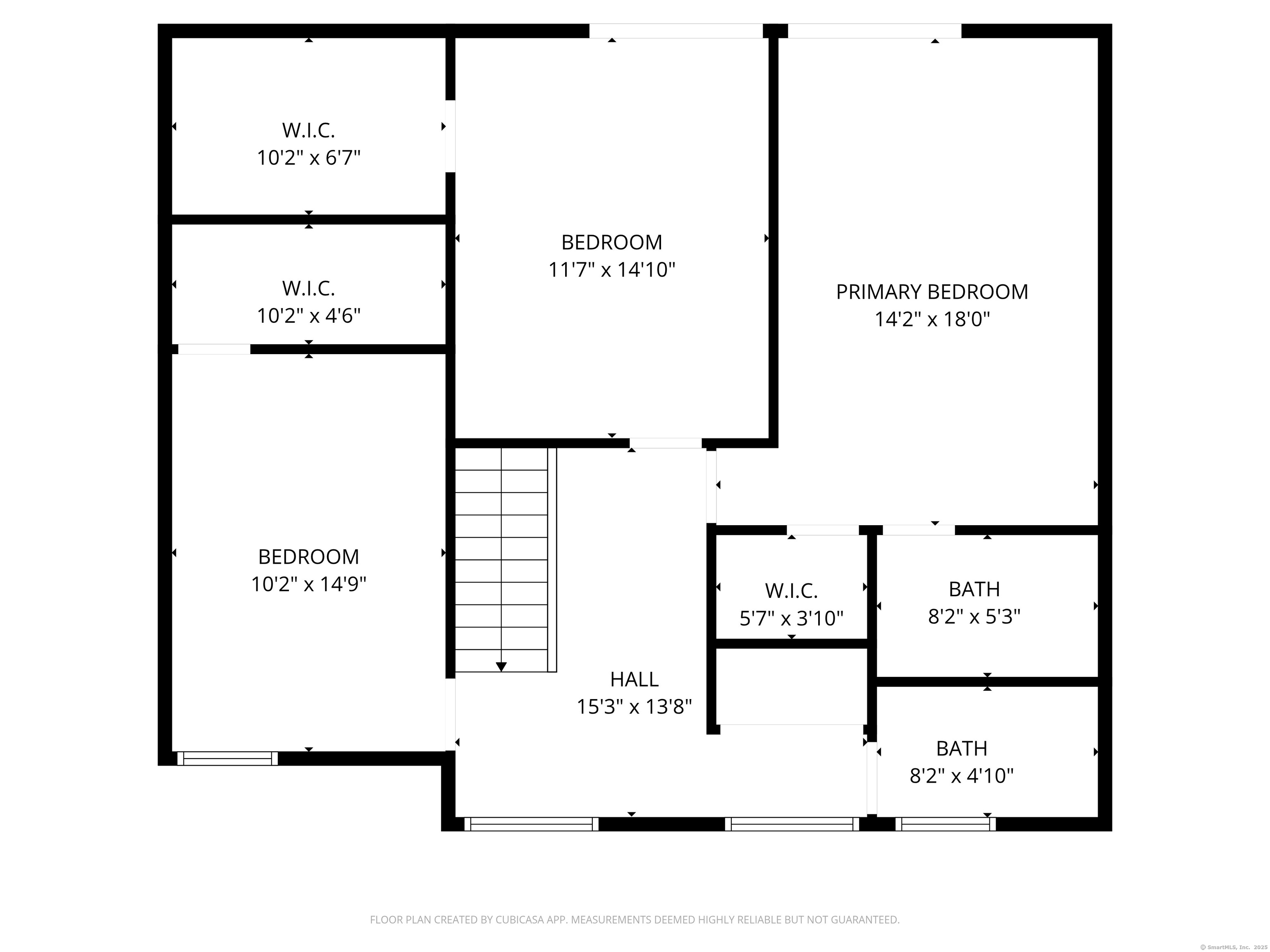
Rooms & Interior

3 bedrooms beds
2 full + 1 half baths
1,652 square feet sq ft

Room Details

  • Living Room (Main Level) Remodeled, Ceiling Fan, Dining Area, Sliders, Hardwood Floor
  • Kitchen (Main Level) Remodeled, Dining Area, Eating Space, Half Bath, Island
  • Primary Bedroom (Upper Level) Remodeled, Balcony/Deck, Full Bath, Sliders, Hardwood Floor
  • Bedroom (Upper Level) Remodeled, Balcony/Deck, Ceiling Fan, Sliders, Hardwood Floor
  • Bedroom (Upper Level) Remodeled, Ceiling Fan, Hardwood Floor
  • Bedroom (Upper Level) Remodeled, Ceiling Fan, Hardwood Floor

Home Features

Heating

  • Heating: heat pump
  • Heat fuel type: electric

Cooling

  • Central air

Interior Features

  • Auto garage door opener
  • Cable - available
  • Open floor plan

Appliances

  • Electric range
  • Microwave
  • Range hood
  • Refrigerator
  • Icemaker
  • Dishwasher
  • Washer
  • Dryer

Attic

  • Unfinished
  • Pull-down stairs

Basement

  • None

Laundry

  • Location: hallway second floor
  • Upper level

Energy Features

  • Ridge vents
  • Storm doors
  • Thermopane windows

Exterior Features

  • Balcony
  • Gutters
  • Lighting
  • Underground sprinkler
  • Patio

Property Details

Parking

  • Garage spaces: 1
  • Attached garage

Swimming Pool

  • Gunite
  • Heated
  • Pool house
  • In ground pool

Waterfront

  • Direct waterfront
  • Harbor
  • Walk to water
  • Water community
  • View
  • Access
Waterfront Homes in Norwalk

Lot Details

  • Lightly wooded
  • Level lot
  • Flood zone: Yes

Utilities

  • Water: public water connected
  • Sewage: pub. sewer connected
  • Sewage fee: $ 432 per year

Near-by Amenities

  • Basketball court
  • Medical facilities
  • Park
  • Playground/tot lot
  • Public transportation
  • Shopping/mall
  • Tennis courts

HOA Fee

  • $ 884 monthly

Construction Details

Style
townhouse

Construction year
1973

Exterior Siding
vinyl siding, brick


- Condo Complex - Dorlon Terrace

Unit types
townhouse

Bedrooms
1, 2, 3 beds

Year built
1973

Sport & health
pool

Recreation
club house

Facilities
guest parking

2 homes for sale / $650K med. price
read more

Area & Town

This home is located in East Norwalk neighborhood, in the town of Norwalk.

Finance & Listing Info

Status Closed
Listing date September 02, 2025
Closed date January 22, 2026
Days on market 142 days
List price $ 997,000
Close price $ 950,000
Sale-to-list ratio 95%
Tax amount $ 13,707
Tax year july 2025-june 2026
Financing used Cash
MLS ID #24121290
List Agent Ellen Balazs
Co-List Agent Jeffrey Byington
List Office Berkshire Hathaway NE Prop.
Co-List Office berkshire hathaway ne prop.

Because we love Fairfield County!

© Copyright 1999 - 2026 Dagny's LLC. - 20 Windy Ridge Place Wilton, CT 06897 - Terms & Conditions