43 Linron Dr Danbury, CT, 06810

townhouse condo in Summit Park West
$ 195,600 Sold Sep 5, 2025
60 days on market, 97% sale-to-list ratio
  • 2 beds
  • 1 bath
  • 701 sq ft
  • 1960 year built

About the Home

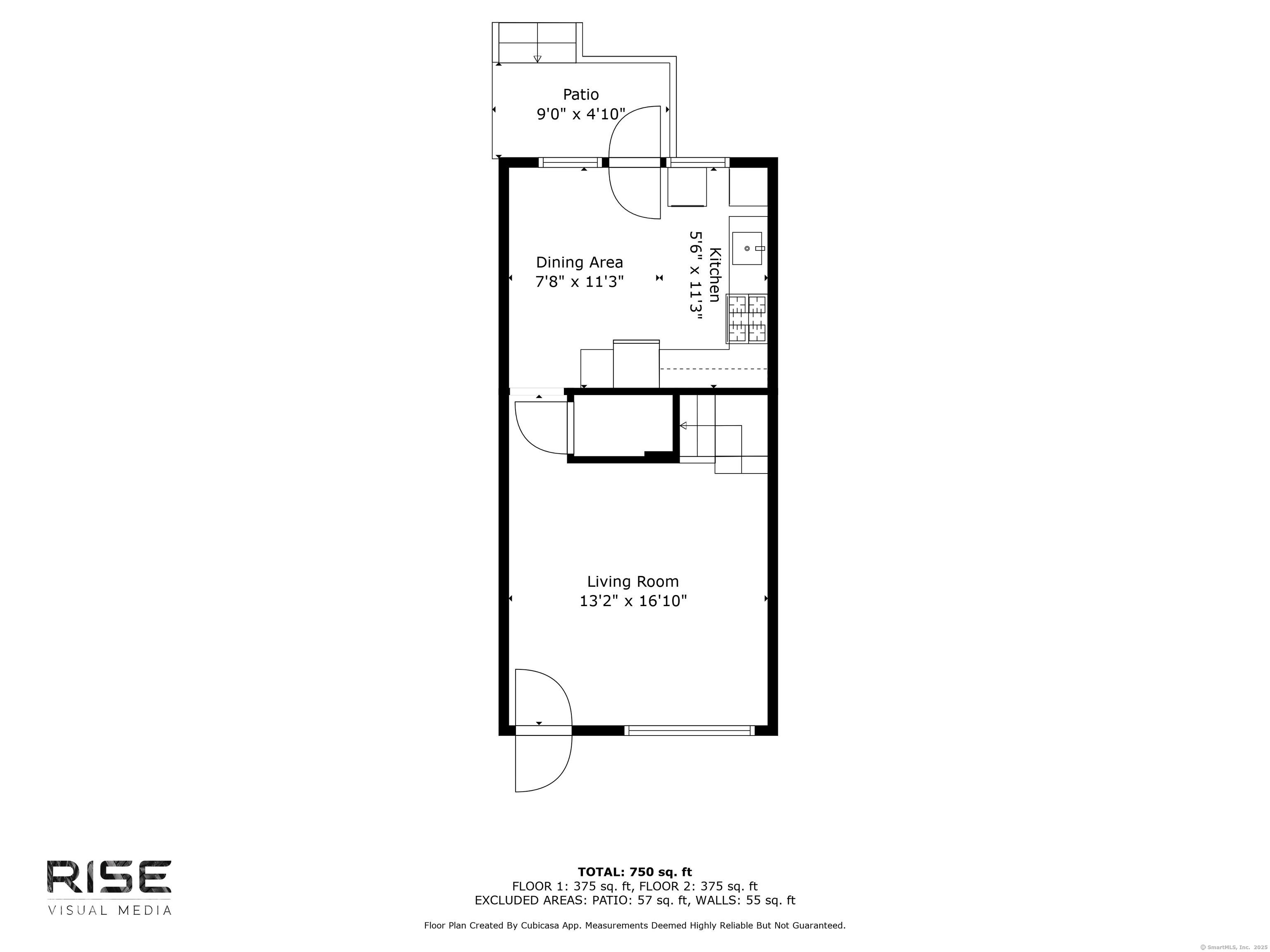
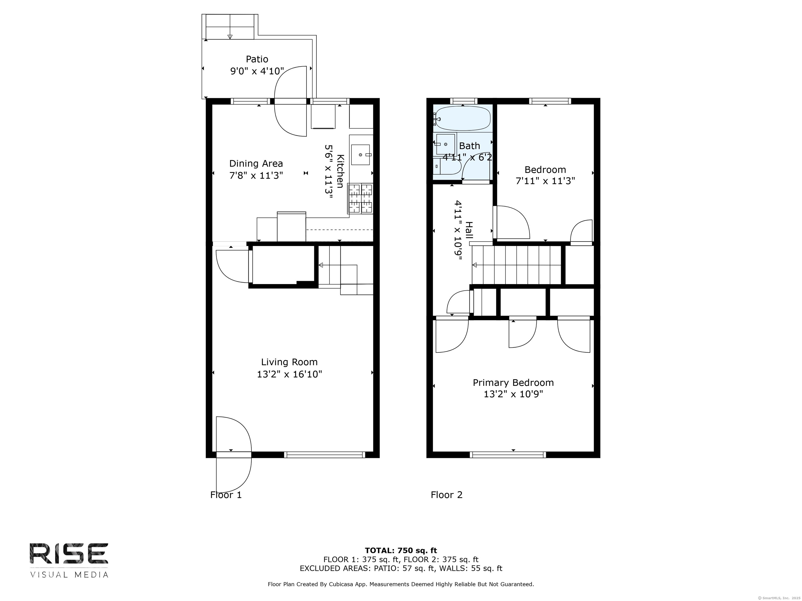
Welcome to this inviting 2-bedroom, 1-bath townhouse-style condo in Danbury. Featuring a bright open layout, this home offers easy flow between living and dining spaces, perfect for everyday living or entertaining. Step out to your private patio, ideal for morning coffee or evening relaxation. With two comfortable bedrooms, a full bath, and a sought-after location close to shopping, dining, and parks, this condo is the perfect blend of comfort and convenience.

Rooms & Interior

2 bedrooms beds
1 full bath
701 square feet sq ft

Room Details

  • Dining Room (Main Level)
  • Bedroom (Upper Level)
  • Primary Bedroom (Upper Level)
  • Kitchen (Main Level)
  • Living Room (Main Level)

Home Features

Heating

  • Heating: radiator
  • Heat fuel type: natural gas

Cooling

  • Ceiling fans

Appliances

  • Oven/range
  • Refrigerator
  • Disposal
  • Washer
  • Dryer

Basement

  • None

Laundry

  • Main level

Property Details

Parking

  • None
  • Paved
  • Driveway

Lot Details

  • Level lot

Utilities

  • Water: public water connected
  • Sewage: pub. sewer connected

HOA Fee

  • $ 445 monthly

Construction Details

Style
townhouse

Construction year
1960

Exterior Siding
brick


- Condo Complex - Summit Park West

no homes for sale / $196K med. price
read more

Area & Town

This home is located in City Center neighborhood, in the town of Danbury.

Finance & Listing Info

Status Closed
Listing date September 05, 2025
Closed date November 04, 2025
Days on market 60 days
List price $ 200,000
Close price $ 195,600
Sale-to-list ratio 97%
Tax amount $ 2,681
Tax year july 2025-june 2026
Financing used Assumed conventional
MLS ID #24124588
List Agent Besart Dani
Co-List Agent Emily Lovejoy
List Office William Raveis Real Estate
Co-List Office william raveis real estate

43 Linron Drive Home Photos

Because we love Fairfield County!

© Copyright 1999 - 2026 Dagny's LLC. - 20 Windy Ridge Place Wilton, CT 06897 - Terms & Conditions