68 LOT 2 State Route 37 Rte New Fairfield, CT, 06812

single family home
$ 1,100,000 For Sale Cont. To Show Mar 6, 2026
  • 4 beds
  • 4 baths
  • 2,950 sq ft
  • 1.1 acres
  • to be built
  • 2 cars garage

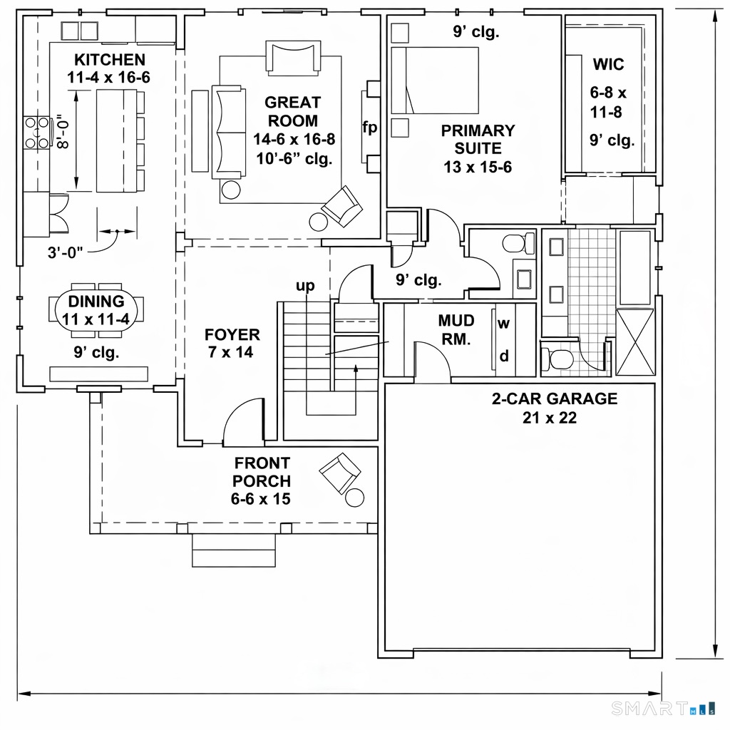
About the Home

Welcome to this stunning new construction Colonial-style home, perfectly blending modern convenience with timeless charm. Situated on over an acre of land, this property has the space and flexibility you've been searching for. Step into an open-concept main level designed for effortless living and entertaining (9ft ceilings). The kitchen, with a walk-in pantry, dining area, and great room featuring a cozy gas fireplace and sliders to the back deck, is the heart of this home. Customization awaits with generous allowances for GE Cafe appliances, countertops, cabinets, lighting fixtures, and hardware, allowing you to create your dream kitchen and baths. including a luxurious primary suite (8ft ceilings). The main level primary suite boasts a full bath with a private toilet room and walk-in closet, Upstairs, the well-thought-out layout includes three spacious bedrooms, and an extra office space. The upper-level laundry room adds convenience to your daily routine. A 2-car garage completes this remarkable home, offering modern amenities and exceptional design on a picturesque lot. Don't miss the opportunity to make this customizable new construction your forever home!

Rooms & Interior

4 bedrooms beds
3 full + 1 half baths
2,950 square feet sq ft

Room Details

  • Kitchen (Main Level) Pantry, Dining Area
  • Dining Room (Main Level)
  • Half Bath (Main Level)
  • Primary Br Suite (Main Level) Bedroom Suite, Full Bath, Walk-In Closet
  • Bedroom (Upper Level)
  • Bedroom (Upper Level)
  • Great Room (Main Level) Gas Log Fireplace, Sliders
  • Bedroom (Upper Level)
  • Full Bath (Upper Level) Tile Floor
  • Other Rooms Laundry room, Mud room

Home Features

Heating

  • Fireplaces: 1
  • Heating: hot water
  • Heat fuel type: propane
  • Fuel tank: above ground

Cooling

  • Central air
  • Zoned

Interior Features

  • Open floor plan

Appliances

  • Allowance

Basement

  • Full
  • Unfinished

Laundry

  • Location: second floor
  • Upper level

Exterior Features

  • Porch-enclosed
  • Porch
  • Gutters
  • Deck

Property Details

Parking

  • Garage spaces: 2
  • Attached garage

Lot Details

  • Lot surface: 1.1 acres
  • Level lot

Utilities

  • Water: private well
  • Sewage: septic

Near-by Amenities

  • Lake
  • Medical facilities
  • Playground/tot lot
  • Shopping/mall

Construction Details

Style
colonial

New construction
to be built

Construction year
2026

Exterior Siding
vinyl siding

Foundation
concrete

Roof
asphalt shingle

New Constructions in New Fairfield

Area & Town

This home is located in South New Fairfield neighborhood, in the town of New Fairfield.

Finance & Listing Info

Status Cont. to show
Listing date March 06, 2026
List price $ 1,100,000
Current price $ 1,100,000
Tax amount $ 2,804
Tax year july 2025-june 2026
MLS ID #24156931
List Agent Matt Rose
List Office Keller Williams Realty

68 LOT 2 State Route 37 Route Home Photos

Because we love Fairfield County!

© Copyright 1999 - 2026 Dagny's LLC. - 20 Windy Ridge Place Wilton, CT 06897 - Terms & Conditions