18 Grandview Ave Danbury, CT, 06810

multi family home
$ 840,000 Sold Jan 21, 2026
93 days on market, 101% sale-to-list ratio
  • 7 beds
  • 4 baths
  • 3,063 sq ft
  • 1900 year built
  • 2 cars garage

About the Home

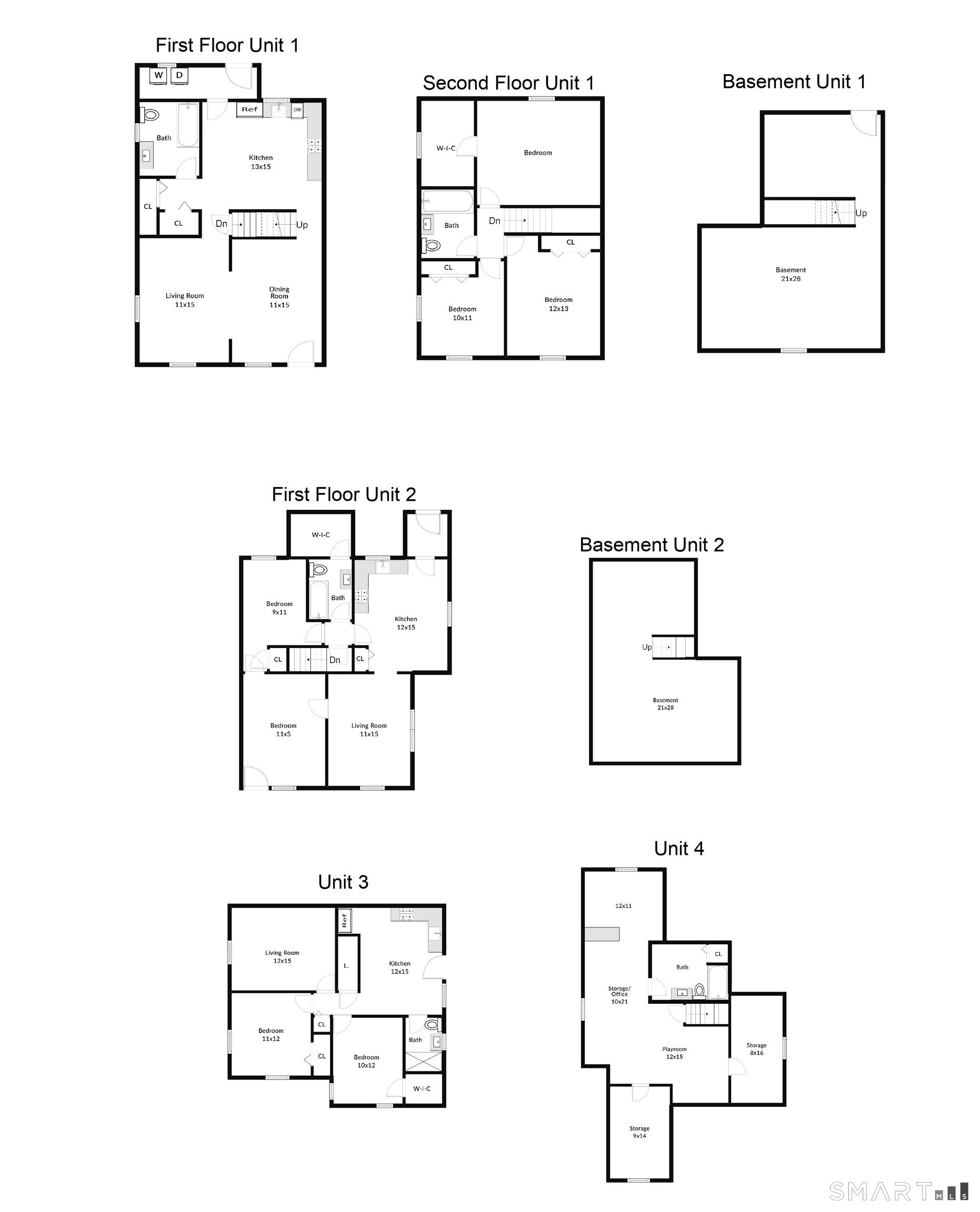
Well maintained three family property located in the heart of Danbury, CT. Ideal for investors or owner occupants seeking rental income. Unit 1 offers 3 bedrooms, 2 full bathrooms, living room, dining room, and a spacious kitchen; fully renovated in 2023.Units 2 and 3 each feature; 2 bedrooms, 1 full bathroom, living room, and eat-in kitchen. Each unit has it is own in-unit laundry area. Property features include a detached two cars garage, patio area for outdoor enjoyment, natural gas, and city water and sewer.Conveniently located just minutes from I84 and Route 7, and close to schools, parks, shopping centers, and local amenities.Property is being sold "As Is." Schedule your showing today!

Rooms & Interior

7 bedrooms beds
4 full baths
3,063 square feet sq ft

Home Features

Heating

  • Heating: baseboard, radiator
  • Heat fuel type: electric, oil
  • Fuel tank: in basement

Cooling

  • Window unit

Attic

  • Heated
  • Storage space
  • Finished
  • Walk-up

Basement

  • Full
  • Unfinished
  • Sump pump
  • Interior access
  • Walk-out
  • Full with walk-out

Laundry

  • All units have hook-ups
  • Washer/dryer all units

Exterior Features

  • Deck
  • Patio

Property Details

Parking

  • Garage spaces: 2
  • Detached garage
  • Off street parking
  • Unassigned parking
  • Driveway

Lot Details

  • Lot surface: 0.25 acres
  • Level lot

Driveway

  • Private
  • Paved

Utilities

  • Water: public water connected
  • Sewage: pub. sewer connected

Near-by Amenities

  • Lake
  • Library
  • Medical facilities
  • Park
  • Playground/tot lot
  • Public transportation
  • Shopping/mall

Construction Details

Style
units are side-by-side, 3updown - unit(s) per floor

Construction year
1900

Exterior Siding
vinyl siding

Foundation
concrete

Roof
asphalt shingle


Area & Town

This home is located at the intersection of two neighborhoods,
Mill Plain and City Center, in the town of Danbury.

Finance & Listing Info

Status Closed
Listing date January 21, 2026
Closed date April 24, 2026
Days on market 93 days
List price $ 825,000
Close price $ 840,000
Sale-to-list ratio 101%
Tax amount $ 9,961
Tax year july 2025-june 2026
Financing used Conventional fixed
MLS ID #24150248
List Agent Johanna Pena
List Office Coldwell Banker Realty

Because we love Fairfield County!

© Copyright 1999 - 2026 Dagny's LLC. - 20 Windy Ridge Place Wilton, CT 06897 - Terms & Conditions